Ragnar Glamp | Design Hotel and DROP SPA area
at the seaside Pitrags, Latvia
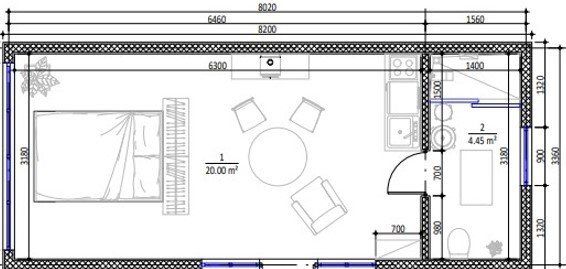
HOUSE LUX PREMIUM
195 EUR / night
with in-built sauna and cinema projector
PITRAGS, LATVIA
| half open space house project |
suitable for 2 adults + 1 pull out sofa bed
- 29 sqm
- natural wooden oak heated floors
- 1 large wall window
- 1 tall wc window - dim mirrored
- 2 pane window glass door elements
- wooden door shutters
- kitchen
- queen size highest standard bed
- pull out sofa bed
- 100% linen bedding
- Linen and wool blankets
- heated floor spa type shower and wc room & towels
- air heating
- air conditioning
- smart cinema projector
- Netflix account
- outdoor terrace and furniture
- fridge
- complimentary beverage set free of charge
- pet friendly
Hotel information, extra services, price lists and internal regulations, press below for LV and ENG versions:
HOUSE LUX
155 EUR / night
PITRAGS, LATVIA
| half open space house project |
- 24 sqm
- natural wooden oak floors
- 1 large wall window
- 1 door tall wc window - dim mirrored
- 2 pane window glass door elements
- wooden door shutters
- kitchen
- queen size highest standard bed
- pull out chair-bed
- 100% linen bedding
- linen, cotton and wool blankets
- heated floor spa type shower and wc room & towels
- Jøtul stove & fireplace
- air heating
- air conditioning
- outdoor terrace and furniture
- fridge
- complimentary beverage set free of charge
- pet friendly
Hotel information, extra services, price lists and internal regulations, press below for LV and ENG versions:
Tranquility, flowing water and peace - our new Drop design SPA invites you - an ultimate relaxing experience
DROP DESIGN SPA
luxurious hot tub - jacuzzi
in the glass house
from 35 EUR / h
PITRAGS, LATVIA
The second DROP design SPA hot tub in Latvia! Built in the beautiful glass house construction with wooden terrace.
Only few meter's from guest houses this spectacular experience allows guests to enjoy luxurious SPA treats while watching the magical sunrise over the misty meadows or vanilla skies while sun is setting. Watch the stars or even catch the aurora borealis!
This modern outdoor spa pool is designed and made in Finland and guarantees a first-class bathing experience. In Drop design outdoor spa pool one can sense the murmur of the river as the light plays on the water’s surface and enjoy the calming effect of the warm water. In addition to its low-key and stylish appearance, the massaging nozzles guarantee that Drop spa pool is a holistic experience for all senses.
This pool package is true luxurious water therapy!
FOR HOTEL GUESTS:
1h - 50 EUR
2h and more - 35 EUR / h
Morning hours special price till 11:00 - 35 EUR / h
__________
FOR EXTERNAL GUESTS:
1h - 60 EUR
2h and more - 45 EUR / h
Set of:
1 cotton towel 70 x 140cm
1 pair of bath slippers
1 linen bath robe
15 EUR
- Drop Design SPA jacuzzi 2,2 x 2,2m
- Comfortable for up to 5 persons
- Self cleaning water circulation ensures fresh and clean water for each guest
- Several light colors mode
- Bubbles massage on and off mode
- 12sqm glass house that protects from the wind and precipitation - is not heated
- 15sqm natural wooden terrace
Included in the price*:
- 2 cotton towels 70 x 140cm
- 2 bath slippers
- 2 linen bath robes
* only for hotel guests
Add SPA jacuzzi hours to your reservation or reserve only SPA area for you and your friends and family!
Please contact us for daily reservations, events or photosets:
reservations@ragnarglamp.com | +371 25719793
Inspire and get more information about the holistic Drop jacuzzi experience by reading the Drop SPA article, click below:
Rent a bicycle
New price! Now 15 EUR / day
ONLY AVAILABLE IN RAGNAR GLAMP PITRAGS
A perfect way to explore the near by villages, calming sea shore and beautiful forest trails.
Rent a bike and enjoy! These black, custom made bikes coming from Netherlands are best choice for your holidays at the sea. Order them online while placing your reservation or contact us directly!
NB! Bikes are limited amount, please be aware of availability or contact administration.

LOTUS BELLE TENT
For extra person stay or events:
- ®Lotus Belle Tent is located at Ragnar Glamp Pitrags at the sea
- minimum 24h onsite rent or more h
- Beige silky inlay cover and natural coconut fibre round indoor carpet included
- Projector rent for indoor cinema night
- ®Adez grill rent for your tasty barbeque dishes to be served here
- Heater and loudspeaker can be add if needed
- Decoration service of any kinds - boho, rustic, bali vibes, jungle cool etc.
- Electricity provided
NB! Please contact us directly for prices, more information and possibilities.
Each guest in the house apartment receives a free compliment consisting of:
- Nespresso® coffee capsules x 4pcs.
- Loose leaf tea
- Spices - salt
- Cooking oil
The interior and furniture elements of each house are different, most of the time - hand picked, vintage or crafted especially for Ragnar Glamp Luxury Hotel Chain glamping houses.
Hotel Pitrags













































































































































